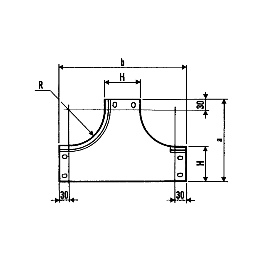
![]() |
Code | ||||||||
|---|---|---|---|---|---|---|---|---|---|
| T0 115 0505 | |||||||||
| T0 115 0510 | |||||||||
| T0 115 0515 | |||||||||
| T0 115 0520 | |||||||||
| T0 115 0530 | |||||||||
| T0 115 0540 | |||||||||
| T0 115 0550 | |||||||||
| T0 115 0560 | |||||||||
Thickness
T1 115 - Component - 1,00mm
T1 092 - Cover - 0,80mm
*T0 115 0507 - Dimension on demand

| 01 | Galvanization (Sendzimir method) - UNI EN 10346 | |
| 03 | Hot dip galvanizing - UNI EN ISO 1461 | |
| 11 | Grey RAL 7032 - ISO9227-ISO6270-ISO2810 | |
| 15 | Blue RAL 5015 - ISO9227-ISO6270-ISO2810 | |
| 40 | Stainless steel AISI 304 - UNI EN 10088 | |
| 41 | Stainless steel AISI 316L - UNI EN 10088 |
- IMQ
- EN 61537-1 ed.2007
- EN 50085-1:2005 ed EN 50085-2-1:2006
- UL file E471266
Attention: for ZT and ZM material sold/assembled in U.S.A. and Canada, please require UL mark