Upon Request:
40 Stainless steel AISI 304

| 01 | Galvanization (Sendzimir method) - UNI EN 10346 |

y= Max load (Kg/m)
x= Distance between supports (m)
D= Uniform load
M= Uniform load + Concentrated load 80Kg
The maximum give (Fmax) under these loads must always be less than 1/200 of the span (L)
Recommended maximum length among supports 5,5m.
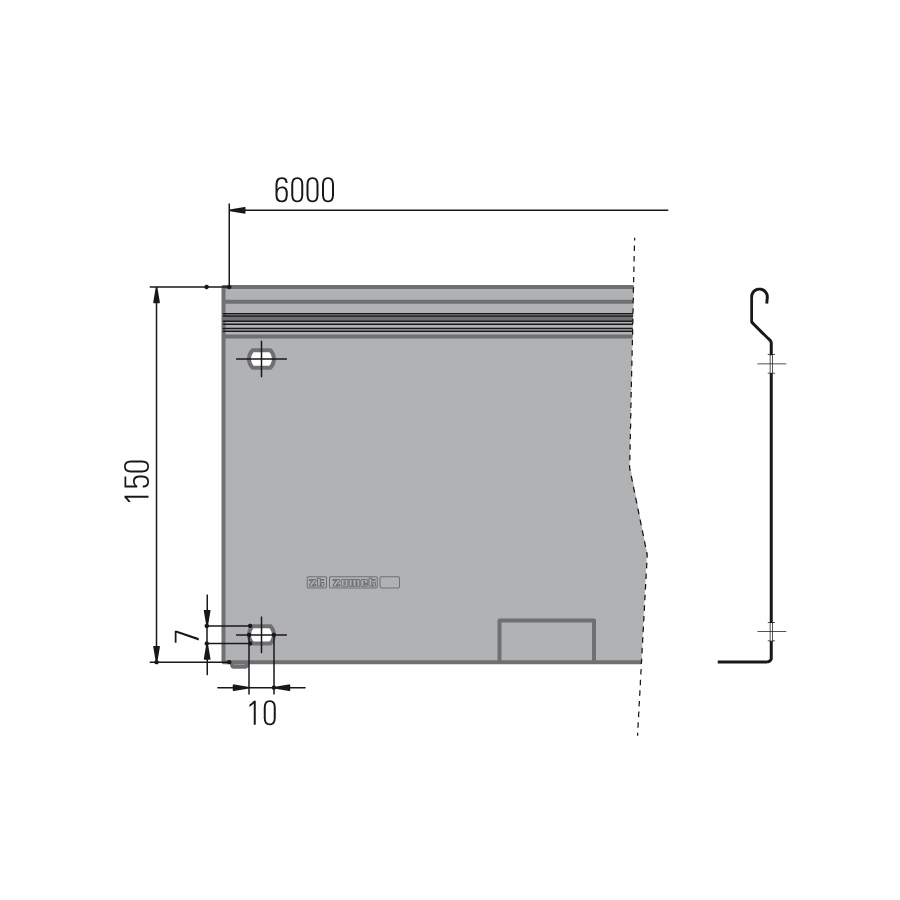
The ZU series has been designed for the transport of large diameter cables, as distribution and containment dorsal. As you can see, on the trunking base (1) there are reinforcing traverses (2).
The edge height (3) is 150mm with a 20/10 thickness. The length of the 6m bars is particularly indicative of the use. The supports can be positined at an average distance of 5m and this allows bypasses without using any staffs or overhead suspension systems.